土地 建築条件無し 京王高尾線 めじろ台駅 山田駅 山田町
土地 京王高尾線 めじろ台駅 山田駅 山田町の詳しい情報。こちらの土地は前面道路6m以上です。駅までは徒歩13分でアクセス可能です。こちらの住宅用地で念願のマイホームはいかがでしょうか。売地をお探しの方にぴったりの土地がこちらです。誰もがあこがれる日の当たりが良くて静かな場所、それが第一種低層住居専用地域です。
ローンシミュレーションこの物件を購入した場合の、月々の支払い価格の一例です。借り入れを保証するものではございません。
- 返済期間
-
- 金利
-
- ボーナス時の増額(1回分)
-
- 借入金額:
-
- 頭金:
-

- 毎月の返済額:
(※元利均等方式 金利5.00%まで ※返済年数5~50年まで入力できます)
(※ボーナスは年2回で計算しています。1000万円まで入力できます)
(※物件購入時、その他諸費用が発生する場合がございます)
担当者のコメント 村上 翔一

- こだわりで選びたい方におすすめ。八王子市エリアで住まいをお探しなら「土地 京王高尾線 めじろ台駅 山田駅 山田町」。駅まで徒歩13分の場所に立地しています。開放的でゆったりとした街並みの第一種低層住居専用地域での生活はいかがですか。こちらの土地は前面道路6m以上です。周囲の環境もきっと満足して頂ける住宅用地はこちらです。ぜひご覧ください。土地購入をお考えの方に好条件の売地が多数あります。
ポイント・特徴
物件概要
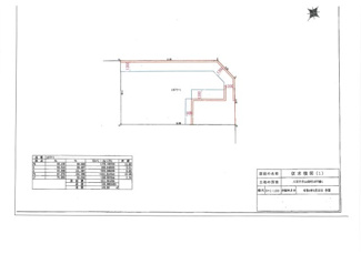
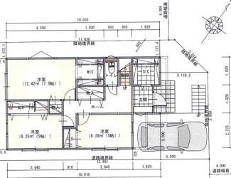
【売地】 物件番号:69805927 情報更新日:2026年01月15日 次回更新予定日:2026年01月29日| 所在地 | 東京都八王子市山田町1677 | ||
|---|---|---|---|
| 交通 | |||
| 価格 | 1,550万円 | ||
| 土地の敷金/保証金 | -/- | 借地料/借地期間 | -/- |
| 土地面積(坪数) | 105.98㎡(32.05坪) | 坪単価 | 48.36万円 |
| 私道負担面積/セットバック | -/無 | 高圧線下面積 | - |
| 傾斜地部分面積 | - | 路地状敷地 | - |
| 土地権利 | 所有権 | 接道状況 | 二方(北 公道 6.0m)(東 公道 4.0m) |
| 都市計画 | 市街化区域 | 用途地域 | 第一種低層住居専用 |
| 建築条件 | 無 | 地目/地勢 | 宅地/その他 |
| 建ぺい率 | 50% | 容積率 | 100% |
| 総区画数 | - | 販売区画数 | - |
| 国土法届出要否 | 不要 | その他の法令上の制限 | 景観地区 |
| 取引態様 | 売主 | 現況 | 更地 |
| 引渡時期 | 相談 | 引渡条件 | 更地渡 |
| 最適用途 | 住宅用地 | ||
| 物件番号 | 69805927 | 取引条件の有効期限 | 2026年01月29日 |
| 設備条件 |
|
||
| 備考 | 駅までは徒歩13分でアクセス可能です。住宅用地です。売地をお探しの方にぴったりの土地がこちらです。こちらの土地は前面道路6m以上です。建物がごちゃごちゃすることがない第一種低層住居専用地域なので、静かに快適に過ごすことができます。 | ||
| 設備(その他) | 建築条件付き 土地のみ要相談 | ||
| 取扱会社 |
|
||
※地図上に表示される物件の位置は付近住所に所在することを表すものであり、実際の物件所在地とは異なる場合がございます。















